Floor plans are foundational tools in interior design and architecture, bridging the gap between creative conceptualisation and practical realisation. For homeowners, designers, and builders alike, proficiently reading floor plans is essential for visualising and effectively planning spaces. This guide delves into the techniques and knowledge necessary to interpret these critical documents, empowering you to navigate and craft spaces with informed precision.
In short…
Reading floor plans is an essential skill for interior designers, as it helps you understand the flow and function of spaces before implementing any design. Mastering this skill allows you to make informed design decisions, ensuring that the spaces you create meet both aesthetic and functional needs. It’s a critical step in the planning process that enables designers to optimise space efficiently.

Image source: Stocksy
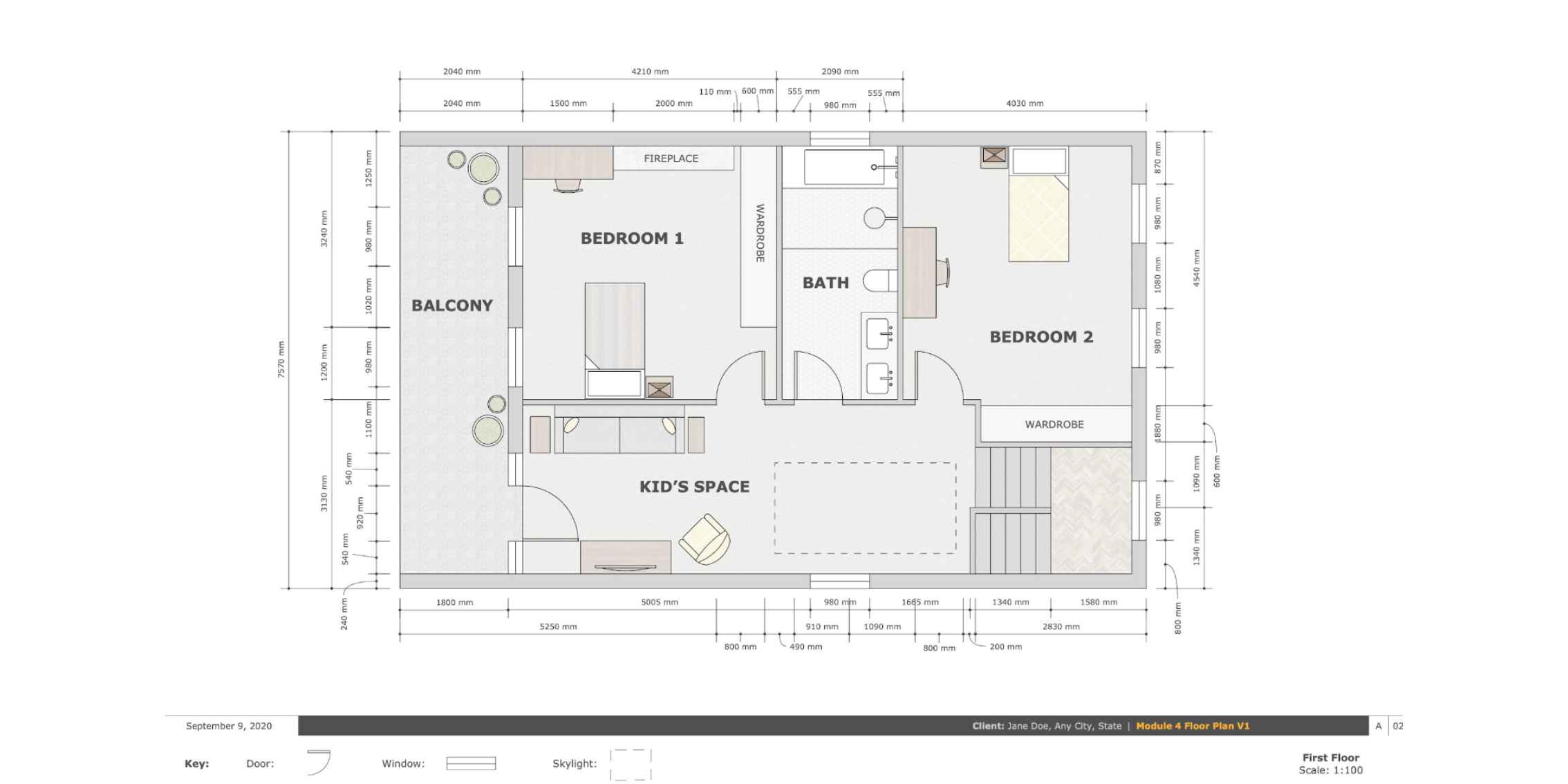
Understanding scale and proportion in floor plans is fundamental for accurately assessing the dimensions and layout of a space. Floor plans are scaled-down representations of physical spaces, where each element is reduced to fit on paper or a digital screen. The scale, often expressed as a ratio (e.g., 1:50), indicates how measurements on the plan translate into real-world dimensions. Familiarising yourself with this scale is crucial for envisioning the size and spacing of rooms, furniture, and other elements within the design.
The ability to identify different rooms and functionalities on a floor plan is key to visualising how the space will come together. Floor plans use a variety of symbols to denote architectural and design features, such as doors, windows, and built-in elements. For example, solid lines typically represent walls, while dashed lines might indicate less permanent features like cabinets or open shelving. Understanding these symbols helps you see beyond the blueprint to the lived experience of the space, ensuring that each area is utilised according to its intended purpose.
Effective circulation is critical in any well-designed space. Floor plans enable you to examine the flow of movement between rooms, identifying main thoroughfares and potential congestion points. Analysing paths from one room to another, the placement of doors, and the arrangement of furniture can reveal how easily people can move through the space. This assessment helps ensure that the layout supports a natural, intuitive flow that compleates daily activities and enhances the overall functionality of the area.

Image source: The Interior Design Institute
Spatial relationships on a floor plan reveal how different areas of the home relate to one another. This understanding allows you to evaluate the practical and aesthetic arrangement of spaces. For instance, the proximity of the kitchen to the dining area affects functionality and social interaction. Analysing these relationships helps ensure that the layout supports the desired interactions between various spaces, enhancing both the utility and enjoyment of each area.
A floor plan must not only look good on paper but also function well in real life. Evaluating the functionality involves considering whether the layout suits the lifestyle and needs of its occupants. This means looking at the size and shape of rooms, the placement of windows and doors, and the general flow of the space to ensure it meets daily living requirements effectively. For example, in a family home, ample communal areas that foster interaction might be prioritised, whereas in a single-person residence, a larger personal space might be more important.
Architectural features such as windows, doors, and built-in elements are critical components of floor plans. These features not only affect the functionality of spaces but also define their character. Large windows might be planned to capture the best views and optimise natural light, influencing the mood and energy efficiency of the home. Recognising these features in a floor plan allows you to consider their aesthetic and practical impacts, helping to create spaces that are both beautiful and functional.

Image source: #IDIstudent Scott Nelson
The orientation of a building influences its thermal performance, lighting, and overall ambiance. A floor plan helps you assess which rooms receive morning or afternoon sun, affecting decisions on the placement of living areas versus bedrooms, for example. Optimising the orientation can enhance comfort and energy efficiency, making the space more pleasant and cost-effective to inhabit.
Leveraging digital tools and software for reading and analysing floor plans can greatly enhance your understanding and capabilities. Technologies like SketchUp and AutoCAD offer three-dimensional visualisations, allowing for a more intuitive grasp of how different elements interact within a space. These tools are particularly useful for exploring complex layouts or for when precise measurements and impacts need to be assessed in detail.

Image source: The Interior Design Institute
Like any skill, proficiency in reading floor plans improves with practice. Engage regularly with floor plans—analyse the layouts of well-known buildings, or try creating your own designs. This practice enhances your spatial awareness and ability to anticipate design challenges, making you better equipped to handle various architectural and design tasks.
Floor plans are more than just technical drawings; they are the blueprint of a dream waiting to be built. By mastering how to read these plans, you equip yourself with the knowledge to turn abstract ideas into concrete realities, ensuring every space you design is both functional and visually appealing.
We also offer advanced modules on AutoCAD and SketchUp, which are available to purchase for students enrolled in our interior design course.

Image source: The Interior Design Institute
In Module 4 of our online interior interior design course, we extensively educate our students on the nuances of floor plans, empowering them with comprehensive skills to decipher these blueprints effectively. Ready to enhance your interior design skills? Enrol today and learn how to master the art of reading floor plans. Once you're a student with us, you'll also get to join our vibrant community of design enthusiasts and connect with students all around the world!